

Facts:
Description:
the Architects
Text description by
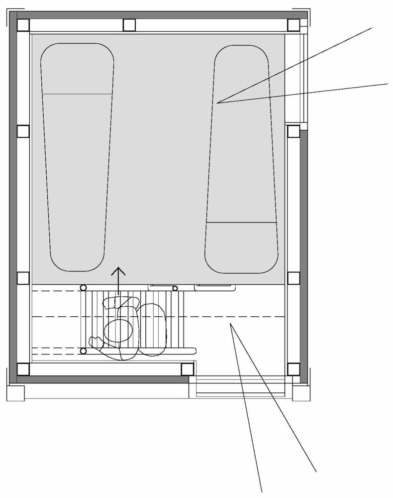
Nestled on a high mountain plateau at 2,080 meters above sea level in Slovenia's Kamnik Alps, the Bivouac Under Grintovec, also known as the Pavle Kemperle Shelter, is a three-story minimalist shelter designed by architect Miha Kajzelj. Built in 2009 to replace an older, deteriorating bivouac, the new structure serves as a free refuge for mountaineers navigating the rugged landscape of Veliki podi beneath Mount Grintovec. Its vertical form is intended to be a highly visible landmark, easily spotted by hikers against the rock in summer or snow in winter. The shelter's design was heavily influenced by the extreme alpine environment and the logistical challenges of building at such a remote site, accessible only by foot. The components of the bivouac were prefabricated for minimal weight and transported to the site by helicopter. It rests on a small concrete base anchored into the bedrock, minimizing its footprint on the landscape. The structure is a simple volume, measuring 2 by 3 meters with a height of 4.5 meters. The exterior is clad in black aluminum panels, which contribute to its striking appearance against the backdrop of the mountains. The interior, with a total floor area of 14 square meters, is arranged across three vertical levels connected by a ladder. Large, vertical windows are strategically placed at the corners to frame dramatic views of the surrounding peaks, giving the impression that the upper sleeping levels are "floating" above the mountain scenery. The bivouac is unheated but designed for energy efficiency. The aluminum outer panels provide insulation to retain the heat generated by the occupants' bodies, while the inner skin of perforated wooden panels allows moisture to escape, ensuring a dry and warm interior. The vertical layout means that heat naturally rises to the upper sleeping levels, which can comfortably accommodate up to eight people. The ground floor provides a living and dining area with benches and a small table. The successful realization of the bivouac earned Miha Kajzelj the Plečnik Medal in 2011. Project credits Architecture: Miha Kajzelj Photography: Matevž Paternoster Client: Gorska reševalna služba Kamnik (Kamnik Mountain Rescue Service) Original Structure: Built in 1973 by the Kamnik Mountain Rescue Service
Team
In This Project:


Presentation / Gallery:
.


Plans & 2Ds:


Materials Used:
More Projects by
Miha Kajzelj Architects
About
Miha Kajzelj Architects:
Miha Kajzelj is a Slovenian architect known for his contextual designs that often respond to nature and human activity. Formerly part of the firm MODULAR arhitekti, he is recognized for creating unique structures that are site-specific and environmentally sensitive, such as the Bivouac Under Grintovec Shelter in the Kamnik Alps. His work, which includes residential, hospitality, and public projects, emphasizes the importance of a critical approach to context and seeks to create an interactive design process that involves the user within the created space.





















































