

Facts:
Description:
the Architects
Text description by
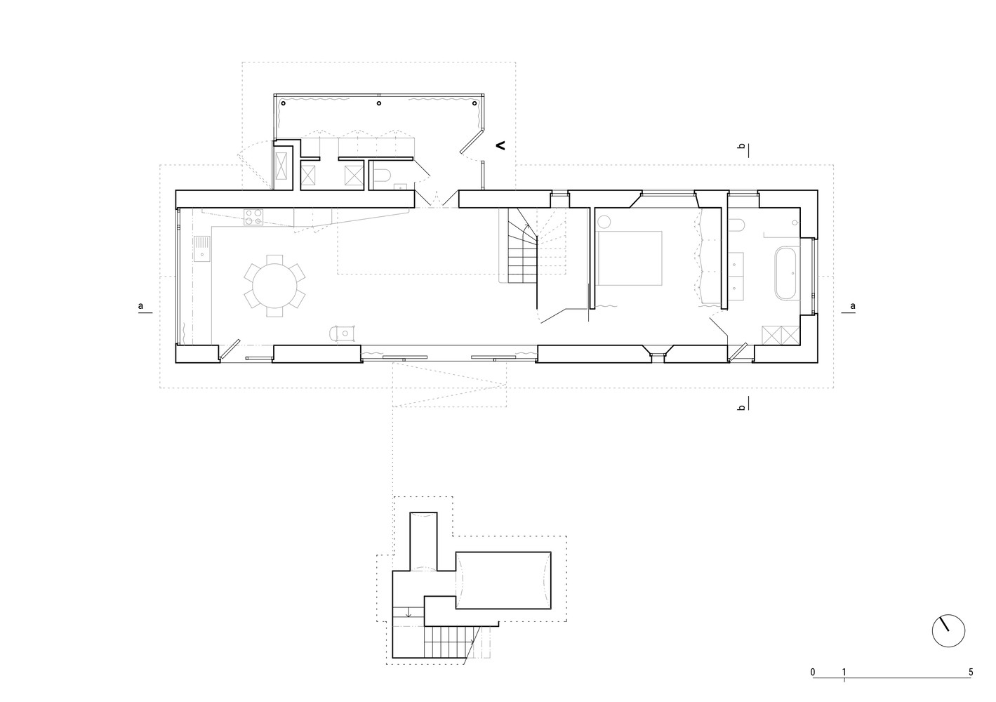
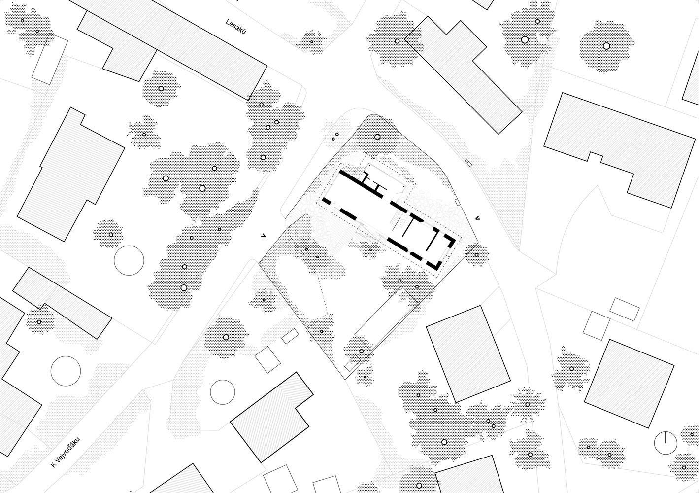
The House in Zbraslav, also referred to as the Zigzag House, is a family residence in the Czech Republic that was rebuilt by Martin Neruda Architektura after being damaged by fire. Completed in 2021, the project involved saving a single-family house on a corner plot in the village of Baně, southeast of Zbraslav. The fire had destroyed the ceilings and roof, but the architectural alterations honored the original footprint and volume of the historic village home. The renovation introduced a new, striking element: a hidden, underground garage integrated into the site's redesign. Above the garage, a green slope was created, enhancing the existing garden and blending seamlessly into the landscape. In addition to preserving the core structure, the reconstruction added a new glazed vestibule and terrace, which significantly updated the house's connection to its surroundings. Credits Architect: Martin Neruda Architektura Photography: Alex Shoots Buildings Structural Engineers: Tomáš Novotný Construction: Stavitelství Drážka Landscape: Jan Kocourek
Team
In This Project:


Presentation / Gallery:
.


Plans & 2Ds:


Materials Used:
More Projects by
Martin Neruda Architektura
About
Martin Neruda Architektura:
Martin Neruda Architektura is a Prague-based architectural studio, founded by Martin Neruda, known for residential and restoration projects that are both context-sensitive and innovative. The firm is particularly recognized for its modern residential designs, such as the "House in Lanškroun," which was a winner at the Grand Prix Architektů in 2022. Their work often involves reusing materials and reinterpreting traditional typologies while employing a meticulous, detailed approach to create spaces that connect with their history and surroundings.



















































































