

Facts:
Description:
the Architects
Text description by
Constructed in 2010, the 64-square-meter HAMRA is a summer house located on the island of Gotland, Sweden, designed by architecture studio DinellJohansson. The project was developed on a limited budget, which was compensated by a long construction period involving friends and builders. The final design mimics the barn-like quality that the clients initially wanted to convert but could not find on the market.
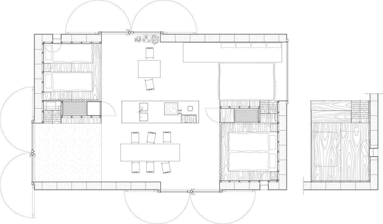
Following local building traditions, the exterior features plastered walls, built from lightweight concrete blocks, and a 45-degree gable roof clad in corrugated Aluzink steel sheets. The dimensions of the house and its openings were carefully planned to fit the size of the masonry blocks, minimizing material waste. Four large, 2.4x2m openings are arranged with rotational symmetry, one on each facade, giving the house a lack of hierarchy and treating all sides equally. Three of these are glazed doors, and one is a fixed window.
The interior of HAMRA is one open space dominated by two plywood volumes that create areas for sleeping and play. All service functions, including technical equipment, water, and drainage, are organized along a narrow, 90cm-wide strip that runs through the house. Spatial elements like a kitchen, fireplace, stairs, storage, and bookshelves are also located along this strip. The furniture was largely assembled from salvaged or reused building materials. A corrugated steel ceiling and plastered walls give the interior an "outside but inside" quality, complemented by plywood-clad sections around two skylights. The kitchen features a 3.1x0.9-meter concrete bench with an integrated fireplace, cast in-situ, with cupboards made from remaining formwork plywood.
Credits
Architects: DinellJohansson (Morten Johansson)
Location: Gotland, Sweden
Year: 2010
Photographs: Elisabeth Toll
Team
In This Project:


Presentation / Gallery:
.
Plans & 2Ds:


Materials Used:
More Projects by
DinellJohansson
About
..
DinellJohansson is a Swedish architectural firm based in Stockholm, founded by Kalle Dinell and Morten Johansson. The firm is known for its collaborative approach, focusing on creating architecture that is less about style and more about people and their needs. They emphasize finding hidden values in every project, regardless of size, and are known for their dedication and willingness to engage in complex collaborative processes. DinellJohansson's work includes residential architecture, sports architecture, and urban planning, with notable projects like the Lidingövallen stadium and the Brofästet apartment building.











































