

Facts:
Description:
the Architects
Text description by
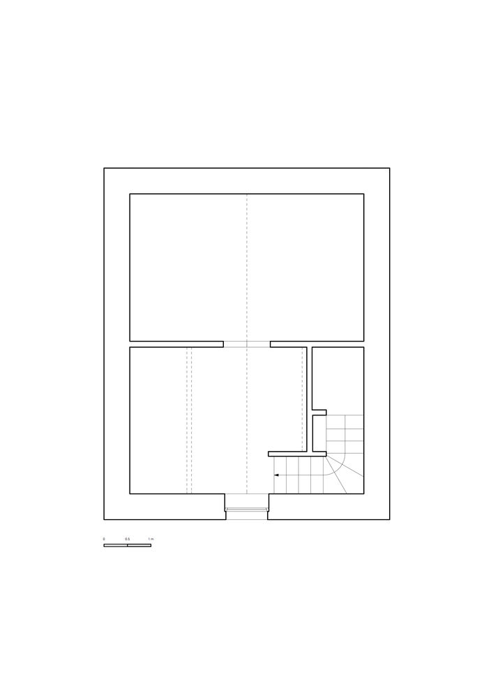
Built in 2018 in São Roque, Portugal, the Chã House is a renovation of a small, rustic, and partially ruined stone farmer's cottage designed by Krafna. The project is a study in contrasts, preserving the original building's modest and picturesque stone exterior while completely transforming the interior into a modern and minimalist weekend retreat. The architects made the conscious decision to maintain the traditional appearance of the exterior, preserving its irregular window openings and only adding one larger window on the facade. This modest exterior belies the dramatically modern and playful interior, which is designed to be slowly discovered by its inhabitants. The central element of the 45-square-meter floor plan is the kitchen, from which a mirrored door leads to the bathroom and a staircase leads to the upper floor. Integrated cabinets and sliding mirrored panels help conceal storage, contributing to the minimal aesthetic and creating a sense of hidden discoveries within the small space. The interior of the Chã House features a rich palette of materials, including wood doors, ceilings, and floors that contribute a warm, cabin-like feel, and lavish marble surfaces in the kitchen. A double-height ceiling over the main living area, combined with the strategic use of light-colored materials and mirrors, creates an illusion of greater spaciousness. A playful detail is a 45-degree rotated "spy window" on the upper floor, which allows inhabitants to look down on the living room and creates a sightline through the entire house. Credits Architects: Krafna Lead Architects: Carolina Leite and Ricardo Mendes (Krafna) Photography: Fábio Veríssimo Santos Manufacturers: Sosoares, Efapel, Climar
Team
In This Project:


Presentation / Gallery:
.


Plans & 2Ds:


Materials Used:
More Projects by
Krafna
About
Krafna:
Krafna is an architectural practice based in Porto, Portugal, co-founded by architects Carolina Leite and Ricardo Mendes. The studio is known for its contextual projects that blend contemporary minimalism with traditional elements, particularly in its restoration work. They often conserve the exterior of older buildings while creating modern interiors, as seen in their Chã House project.















































































