
Please Wait


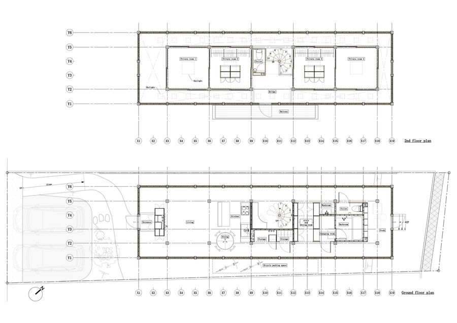
"The Ogimachi House is a minimalist residential retreat in Nagoya, Japan, designed by Tomoaki Uno Architects and completed in 2019. The house was commissioned by a client for his mother, who needed a secluded and peaceful space to recover from an illness. To create a quiet, therapeutic environment that ensures privacy, the architects constructed a windowless cubic volume on a narrow lot, drawing light and air instead from the ceiling. The exterior is defined by a traditional Japanese approach to construction, with cedar siding joined without nails, a technique known as itakura. This method, originally used for storehouses, provides excellent fire resistance and thermal insulation. The interior continues the minimalist aesthetic with a stripped-back material palette centered on natural cypress and cedar woods. Natural light enters through 37 skylights—32 fixed and 5 operable—which cast dynamic, moving shadows on the wooden surfaces throughout the day. The interior is a minimalist and uncluttered space, with bespoke essential furniture and soothing neutral hues. The layout consists of a grid-like central area surrounded by a double-height corridor. The ground floor features open-plan living, dining, and kitchen areas, along with a bedroom, toilet, and washroom. A winding staircase leads to the upper floor, which contains four more private rooms, a small bridge, and a linear balcony. This design balances the need for privacy and solitude with an open flow that encourages tranquility and well-being, creating a space for reflection and recovery. Credits Architect: Tomoaki Uno Architects Lead Architect: Tomoaki Uno Photography: Ben Hosking"


0
Product
4.5K
Views
0
0
Please Log in
Ogimachi House
Nagoya, Aichi, Japan
the Architects
Description:
+13


...
Comments
0
Tomoaki Uno Architects
More Projects by

Please Wait
Ogimachi House
...
















