top of page
© ZHIG

Please Wait


DENISON RIVULET-taylorandhinds-Photographer=Adam Gibson (1).jpg

DENISON RIVULET-taylorandhinds-Photographer=Adam Gibson (2).jpg

DENISON RIVULET-taylorandhinds-Photographer=Adam Gibson (3).jpg
1/5
0
Product
5.7K
Views
11
0
Please Log in
DENISON RIVULET
Douglas River TAS 7215, Australia
the Architects
Description:
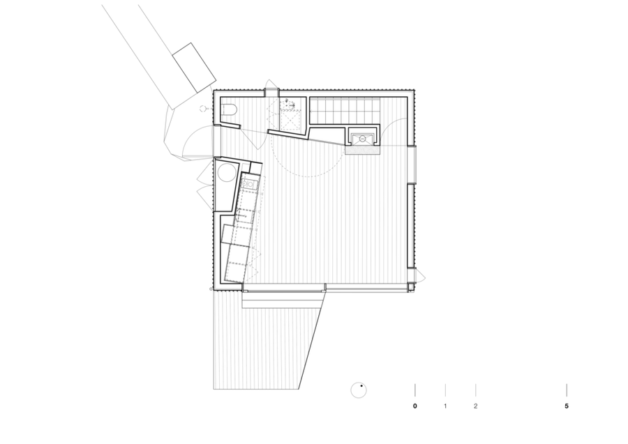
A series of cabins - these structures provide accommodation for couples at the bend of river, just north of Bicheno. The buildings establish a strong engagement with the wider site, through a series of interior strategies and plan relationships that create unique and memorable experiences for guests. The compact massing of the exterior form belies a complex and surprising interior structure – heightened by the materiality of the rooms. Connections to the wider site are made to focus certain landscape qualities, which serve to background the occupation of the rooms. The sense of interiority is most strongly experienced in the most intimate parts of the plan, where detailing sets a relief for the seasonal inhabitation of the interiors. COMPLETED 2018 PROJECT CREDITS: Builder: AJR Construct. Engineer: Aldanmark Consulting Engineers Pty Ltd. Photographer: Adam Gibson
+15


...
Comments
0
Taylor and Hinds
More Projects by

Please Wait
DENISON RIVULET
...
bottom of page





















