top of page
© ZHIG

Please Wait


Mulla Mulla-A-HA Design Studio-Bonnie McEvoy (1).jpg

Mulla Mulla-A-HA Design Studio-Bonnie McEvoy (14).jpg

Mulla Mulla-A-HA Design Studio-Bonnie McEvoy (11).jpg
1/6
0
Product
4.9K
Views
0
0
Please Log in
Mulla Mulla (Pod[e])
Western Port Bay, Australia
the Architects
Description:
The Pod[e] Mulla Mulla is a luxurious, off-grid holiday cabin designed by A-HA Design Studio in collaboration with Scott Taylor, co-founder of the Pod[e] brand. Located on 300 acres of coastal bushland on the Eyre Peninsula in South Australia, the prototype combines high-end comfort with eco-conscious features to minimize its environmental footprint.
The design process was deeply rooted in the site's unique characteristics. The design team camped on the coastal bushland to understand the site's essence, topography, prevailing winds, vistas, and soundscapes.
The cabin's bold and distinct exterior changes color throughout the day with the shifting rhythms of the light. It features prismatic and champagne-colored panels, along with a mirrored skirt, which creates a captivating visual effect.
Material palette: The interior and exterior material choices reference the native flora of the region, the Ironstone Mulla Mulla, a compact native plant with light, feathery blooms endemic to the Eyre Peninsula. The interior features a palette of soft pinks, natural timber, and brushed stainless steel.
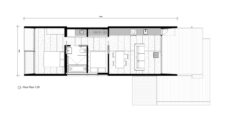
Dimensions: The cabin has a modest footprint, measuring 12 by 5 meters, with an additional 50 square meters of decking.
Open and connected interior: Despite its small size, the design aims to maximize a sense of openness and connection to the landscape.
Sustainability
The cabin is self-sufficient and operates entirely off-grid.
It is powered by solar panels.
It is equipped with a rainwater catchment and filtration system.
The design uses natural ventilation and strategically placed windows and doors to create a comfortable internal climate.
Credits
Architects: A-HA Design Studio (Jesse Zilm) and Scott Taylor, co-founder of Pod[e].
Location: Eyre Peninsula, South Australia.
Project name: Pod[e] Mulla Mulla.
Completion: The project was completed in 2023.
Photography: Bonnie McEvoy.
+18


...
Comments
0
A-HA Design Studio
More Projects by

Please Wait
Mulla Mulla (Pod[e])
...
bottom of page


















