

Facts:
Description:
the Architects
Text description by
The House in Tokyo, also known as the "Frame of a House" or "2700 House", was designed by IGArchitects founder Masato Igarashi for himself and his wife. The project, completed in April 2023, is located in Tokyo and is a response to the city's high land costs, with the architects aiming to explore possibilities for modern, flexible urban living in a compact space. The residence blurs the lines between private and work life, creating a dynamic environment where the couple can sense each other's presence regardless of where they are in the house.
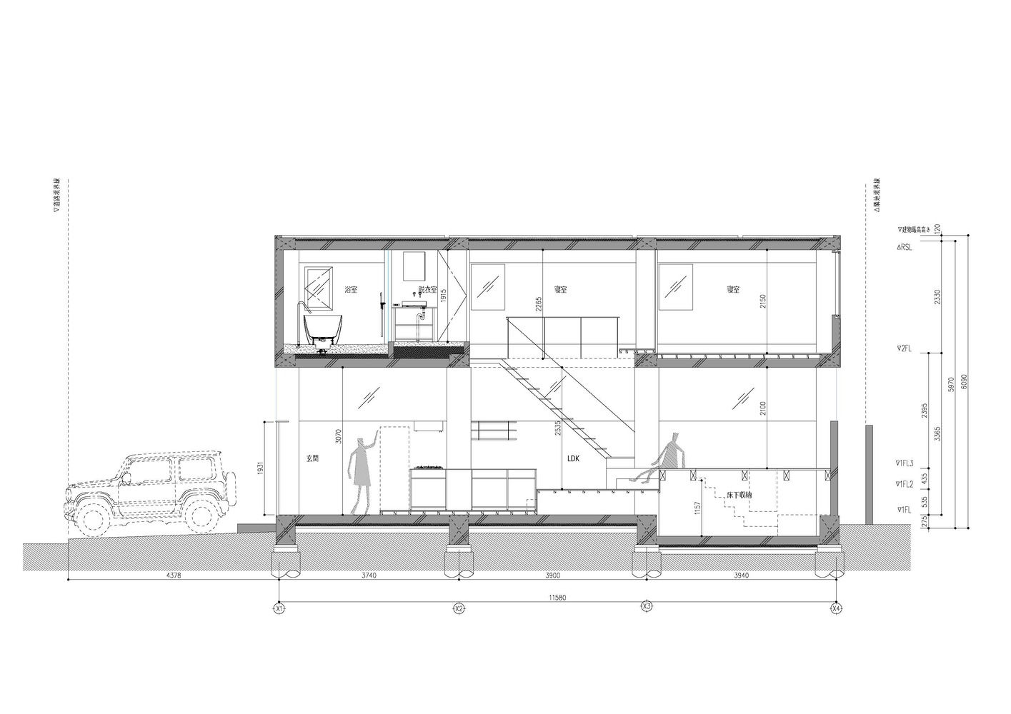
Spanning 59.88 square meters, the house is structurally robust and visually open. It was designed to feel like "one big room" with staggered mezzanine levels rather than traditional, distinct spaces. The concrete structure is left exposed, complemented by wooden details, and the floors are arranged to create different areas without fixed partitions. The interior features a series of platforms and stairs that maximize the use of the small urban footprint while maintaining a sense of fluidity and openness.
The design prioritizes natural light, with sections of full-height glazing at the front of the home that draw light deep into the plan. Service areas like the kitchen and bathroom are positioned at the rear. The strategic placement of windows and the irregular floor plates are intended to make it difficult to see into the interior from the outside, creating privacy despite the abundant natural light.
Credits
Architecture Firm: IGArchitects
Lead Architects: Masato Igarashi
Client: Tomoko Igarashi and Masato Igarashi
Photography: Ooki Jingu
Team
In This Project:


Presentation / Gallery:
.


Plans & 2Ds:


Materials Used:
More Projects by
IGA Architects
About
IGA Architects:
IGArchitects is a Japanese architectural firm founded in 2019 by architect Masato Igarashi. The firm is known for creating flexible and adaptable architectural designs, often in response to Japan's dense urban environments and clients' evolving lifestyles. Their projects utilize materials like concrete and wood to create light-filled, modern spaces that blur the lines between indoors and out, with a focus on simple geometry and contextual awareness. The studio's work includes custom residential projects and has received multiple awards for its innovative approach.













































































